物件情報
| 礼金 | なし | 保証金 | 寮費1ヶ月分 |
|---|---|---|---|
| 寮費 | 55,000~59,500円 A・B・C・Dのタイプありますのでお問合せ下さい。 |
||
| 備品費 | 2,000円 机・ベッド・冷凍冷蔵庫・照明器具・エアコン設置 |
||
| 共益費 | 2,800円 | 水道料 | 実費(定額) |
| インターネット使用料 | 1,850円 | 光熱費 | 実費 |
| 管理費 | 3,000円 通勤管理 | その他 | |
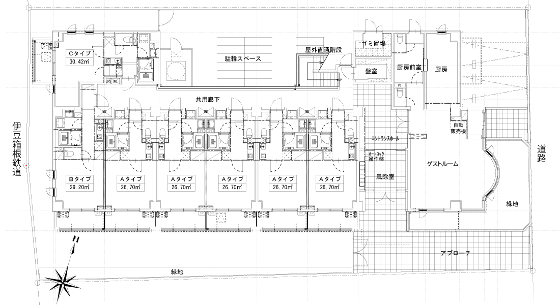
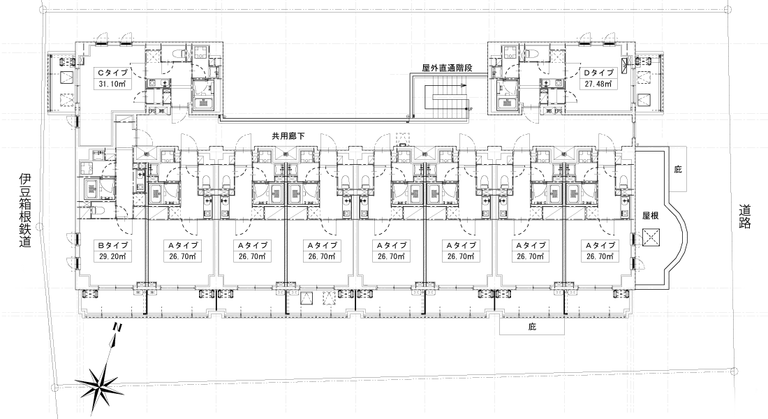
| 居室 | Aタイプ:26.7m² Cタイプ:30.42m² | ||
| Bタイプ:28.2m² Dタイプ:27.43m² | |||
| 部屋数 | 27部屋 別にコミュニティホール有り | ||
| 構造 | 鉄筋コンクリート造 3階建て タイル張り | ||
詳細についてはお問合せ下さい。
|
|||
タイプ別部屋割り表
入居・募集状況等については、お手数ですが下記へお問合わせください。
お問合わせ先 0120-350-181
アパート協会 高城 携帯:090-8546-3491
全室南向き
|
|
|
|
|
|
|
|
|
|
|
|
|
|
|
|
|
|
|
|
|
|
|
|
|
|
|
エントランス入口 | コミュニティホール | |
| ※エントランス入口とコミュニティホールをクリックすると写真を表示します | |||||||||
設備状況
安心・安全な学生寮

- エントランス入口オートロック
- キッチン(IHコンロ)
- TVインターホン
- トイレ(ウォシュレット)
- インターネット対応
- エアコン
- 各所明るいLED照明採用
- 火災報知器(セコム対応)
- 収納庫あり(部屋・キッチン・洗面所・トイレ)
- 防犯カメラ
24時間作動(セコム対応) - 駐輪場・バイク置き場あり
駐車場あり

